(39) 095.7494570 - (39) 327.2699001
Viale Della Costituzione 1/E . (Zona Cinema Planet) - 95125 Catania
[email protected]

Prestigiosa Villa Panoramica a Valverde – Eremo Sant’Anna

Via Giacomo Leopardi, 34, 95022 Marchesana CT, Italia

Caratteristiche

  • Balconi
  • Garage
  • Giardino
  • Terrazza

Dettagli

Condividi questo immobile!

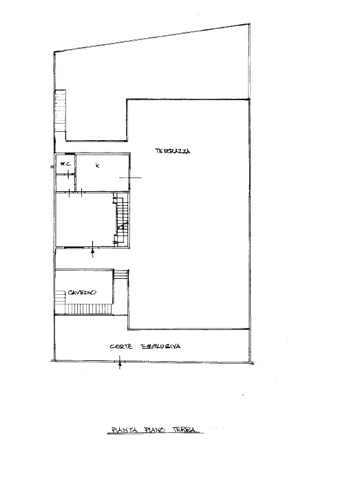
Prestigiosa Villa Panoramica a Valverde – Eremo Sant’Anna Oltre 300 mq interni • Terrazza di 320 mq • Ampio Giardino • Vista Etna e Mare In una delle zone più ambite e panoramiche di Valverde, nelle immediate vicinanze dell’Eremo di Sant’Anna, proponiamo in vendita una splendida e maestosa villa indipendente, caratterizzata da grandi spazi interni ed esterni, perfetta per chi desidera comfort, privacy e un’eccellente esposizione luminosa. La proprietà si sviluppa su tre livelli, per una superficie interna complessiva di oltre 300 mq, circondata da un grande giardino privato dove è possibile realizzare anche una piscina, e da una spettacolare terrazza a livello di circa 320 mq con affaccio panoramico sull’Etna e sul mare. Piano Terra (zona living) Ingresso su ampio salone luminoso, Cucina abitabile con accesso diretto alla magnifica terrazza, Bagno di rappresentanza Piano Primo (zona notte) Tre comode camere da letto, tutte balconate, Bagno principale e Sottotetto utile come deposito o spazio hobby Piano Inferiore (seconda unità abitativa) Perfetto come appartamento indipendente grazie all’ingresso autonomo: Quattro ampi vani, Due bagni, Corridoio, Cucina abitabile, Lavanderia Tutti gli ambienti si affacciano su una deliziosa terrazza e sul giardino. Completano la proprietà un Garage doppio per due auto Spazi esterni sfruttabili per aree relax, zona barbecue e futura piscina Contesto prestigioso e riservato. La villa, grazie alla disposizione degli ambienti e ai due ingressi indipendenti, si presta perfettamente anche come soluzione per due nuclei familiari o per chi desidera unire abitazione principale e dependance. La villa necessita di parziali interventi di ristrutturazione.

Planimetria

PLN P. Terra Via G.Leopardi 34.jpg

PLN Via Giacomo Leopardi 34.jpg

  • ID: 18577
  • Views: 140

Richiedi informazioni

    Autorizzazione al trattamento dei tuoi dati personali ai sensi dell’art. 13 del D.Lgs. n. 196/2003 e al Regolamento UE n. 2016/679 definito GDPR.


    WeCreativez WhatsApp Support
    Hai bisogno di informazioni,
    Salve, come posso aiutarti?