(39) 095.7494570 - (39) 327.2699001
Viale Della Costituzione 1/E . (Zona Cinema Planet) - 95125 Catania
[email protected]

Elegante Villa Unifamiliare Ristrutturata Nicolosi – Pini

Via Etnea, 172, 95030 Nicolosi CT, Italia

Caratteristiche

  • Balconi
  • Garage
  • Giardino
  • Posto auto

Dettagli

Condividi questo immobile!

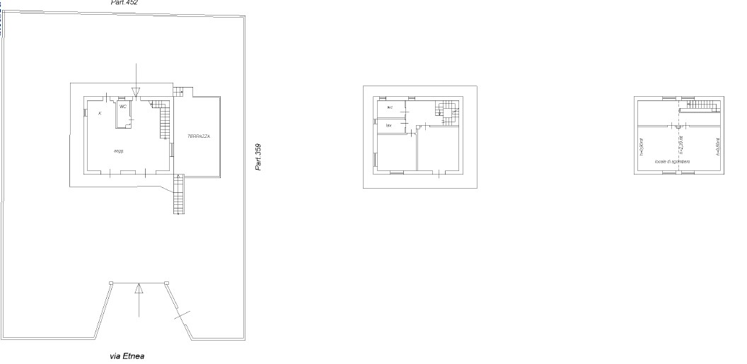
Immersa nella tranquillità e circondata dal verde, questa splendida villa unifamiliare si sviluppa su due livelli più mansarda ed è stata completamente ristrutturata nel 2024, con particolare attenzione alla qualità dei materiali e all’efficienza energetica. Tutti gli impianti sono nuovi e la casa è stata dotata di cappotto termico esterno, garantendo un elevato comfort abitativo e un notevole risparmio energetico. Al piano terra, l’abitazione accoglie gli ospiti in un luminoso soggiorno con camino, perfetto per momenti di relax e convivialità. La cucina, completamente arredata e funzionale, si affaccia sul giardino, creando un piacevole collegamento tra gli spazi interni ed esterni. Completa il piano un bagno moderno e finestrato. Salendo al primo piano, si trovano due spaziose camere da letto – ideali per una famiglia o per chi desidera ambienti comodi e ben distribuiti – e un secondo bagno, rifinito con gusto e materiali di pregio. Il secondo e ultimo piano (mansarda), già ristrutturato, offre la possibilità di realizzare due ulteriori vani a seconda delle proprie esigenze – studio, camere per gli ospiti o area relax – con predisposizione per un ulteriore bagno, rendendo l’ambiente estremamente versatile. All’esterno, la proprietà è impreziosita da un ampio giardino perimetrale di circa 900 mq, curato e completamente recintato, ideale per chi ama vivere all’aperto, organizzare cene estive o semplicemente godersi la natura in totale privacy. È inoltre possibile realizzare una piscina privata, per valorizzare ulteriormente lo spazio esterno. Completano la proprietà un garage singolo di circa 16 mq, perfetto per auto o come spazio accessorio, e un pozzo con riserva idrica, una risorsa preziosa per l’irrigazione del giardino e la gestione sostenibile dell’acqua. Questa villa rappresenta la soluzione ideale per chi cerca una casa indipendente, moderna, efficiente e pronta da vivere, con tutto il comfort che solo una ristrutturazione recente può offrire. Punti di forza principali: Ristrutturazione totale 2024 (impianti nuovi e cappotto termico) Spazi interni luminosi e ben distribuiti Ampio giardino con possibilità di piscina Garage e pozzo con riserva idrica Mansarda già predisposta per ampliamento

Planimetria

PLN ridotta garage Via Etnea 172.jpg

PLN ridotta villa Via Etnea 172.jpg

  • ID: 17906
  • Views: 36

Richiedi informazioni

    Autorizzazione al trattamento dei tuoi dati personali ai sensi dell’art. 13 del D.Lgs. n. 196/2003 e al Regolamento UE n. 2016/679 definito GDPR.


    WeCreativez WhatsApp Support
    Hai bisogno di informazioni,
    Salve, come posso aiutarti?